Performance Lab

Performance Lab

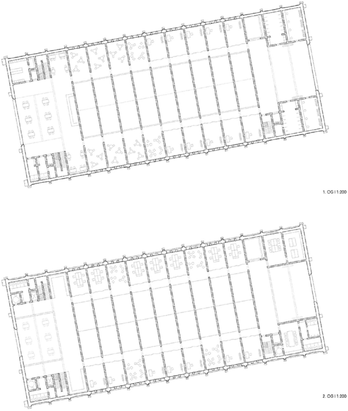
Der Frankfurter Stadtteil Bockenheim befindet sich im Umbruch.Der ehemalige Universitätscampus an der Bockenheimer Landstraße wird nach und nachaufgegeben. Neben Wohn- und Gewerbeflächen sollen die Hochschule für Musik unddarstellende Kunst und weitere Frankfurter Kulturinstitutionen hier unterkommen,um so ein lebendiges Quartier mit vielfältigen kulturellen Angeboten zu generieren.Die Entwurfsaufgabe für das Wintersemester 2015-16 beschäftigt sich mit einemwichtigen kulturellen Baustein des KulturCampus Bockenheim. Im unmittelbarer Nähezum Bockenheimer Depot soll das Performance Lab Frankfurt entstehen. Hier sollenneue Formen von Theater, Tanz und zeitgenössischer Musik sowie moderneVermittlungsformen von Kunst erarbeitet und der Öffentlichkeit zugängig gemachtwerden. Renommierte Kunst- und Kulturinstitutionen aus den unterschiedlichenBereichen der darstellenden Kunst sollen im Performance Lab Frankfurt zusammenarbeiten, forschen, produzieren, ausstellen und aufführen. Neue Raumideen sollen diekünstlerische Produktion, Forschung und Vermittlung fördern und den Künstlern undihren Gästen einen Ort zum Austausch bieten.Neben den Fragestellungen zur städtebaulichen Lösung, der räumlichen Organisation unddem architektonischen Erschgeinungsbild wird uns in diesem Semsester die Interaktionvon Raum und darstellender Kunst beschäftigen.

Timo Hornemann-Schneider
Timo Hornemann-Schneider
Timo Hornemann-Schneider
Timo Hornemann-Schneider
Timo Hornemann-Schneider
Timo Hornemann-Schneider
Timo Hornemann-Schneider
Timo Hornemann-Schneider
Larissa Heller
Larissa Heller
Larissa Heller
Larissa Heller
Larissa Heller
Larissa Heller
Larissa Heller
Larissa Heller
Roman Köbel
Roman Köbel
Roman Köbel
Roman Köbel
Roman Köbel
Roman Köbel
Roman Köbel
Roman Köbel
Nikita Veltmann
Nikita Veltmann
Nikita Veltmann
Nikita Veltmann
Nikita Veltmann
Nikita Veltmann
Nikita Veltmann
Nikita Veltmann